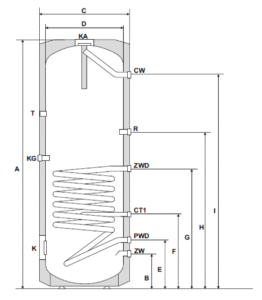
Zasobnik CWU 300l z jedną wężownicą




Wysokość: 151 cm
Średnica z izolacją: 65 cm (niezdejmowalna)
Pojemność rzeczywista: 292 l
Powierzchnia dolnej wężownicy: 1,39 m²
Rodzaj ochrony przed korozją: emalia ceramiczna
Maksymalna temperatura: 95°C
Maksymalne ciśnienie robocze: 0,6 MPa
Średnice przyłączy CWU: 3/4”
Możliwość podłączenia grzałki elektrycznej: Tak, 1 szt. ( 50 cm długość grzałki)
Dostępny
Wysyłka w 24h
5 lat gwarancji
Jeśli szukasz niezawodnego rozwiązania do przygotowania ciepłej wody w dużym gospodarstwie domowym, świetnym wyborem będzie bojler 300l z wężownicą 11.300SE. To nowoczesny i wydajny zasobnik CWU 300l, który doskonale współpracuje z kotłami gazowymi, olejowymi, pelletowymi czy tradycyjnymi kotłami zasypowymi, gwarantując stabilny dostęp do CWU w ciągu całego dnia.
Dzięki większej pojemności i solidnym wymiarom – wysokość 151 cm i średnica 65 cm z izolacją – bojler oferuje znaczną powierzchnię wymiany ciepła, co przekłada się na wysoką sprawność. Spiralna wężownica o powierzchni 1,39 m² zapewnia szybkie i równomierne nagrzewanie wody, dlatego zasobnik CWU 300l sprawdzi się w domach, gdzie z ciepłej wody korzysta nawet 7 osób.
Model 11.300SE wyposażony został w króciec 6/4”, który umożliwia montaż grzałki elektrycznej. To szczególnie praktyczne rozwiązanie dla instalacji fotowoltaicznych – nadwyżki energii elektrycznej mogą być zamieniane w ciepłą wodę użytkową, co podnosi efektywność energetyczną systemu.
Konstrukcja zbiornika oparta jest na stali emaliowanej przystosowanej do wody użytkowej, a całość zabezpieczono izolacją z grafitowego polistyrenu, która minimalizuje straty energii i utrzymuje ciepło przez długi czas.
✅ Duża powierzchnia wymiany – wężownica 1,39 m² dla wysokiej efektywności
✅ Zasobnik CWU 300l – odpowiedni dla rodzin nawet 7-osobowych
✅ Przemyślane gabaryty – łatwy montaż w typowej kotłowni
✅ Możliwość montażu grzałki elektrycznej – idealne wsparcie dla fotowoltaiki
✅ Solidna konstrukcja – stal emaliowana + izolacja z grafitowego polistyrenu
Postaw na bojler 300l z wężownicą – model 11.300SE i zyskaj wydajny zasobnik CWU 300l, który zapewni komfort ciepłej wody użytkowej nawet dla dużej rodziny.

Energia cieplna

Woda użytkowa

Wydajność CWU przy 40°C (zasobnik podgrzany do 60°C)
➡ Wysokość: 151 cm
➡ Średnica z izolacją: 65 cm (niezdejmowalna)
➡ Pojemność rzeczywista: 292 l
➡ Powierzchnia dolnej wężownicy: 1,39 m²
➡ Rodzaj ochrony przed korozją: emalia ceramiczna
➡ Maksymalna temperatura: 95°C
➡ Maksymalne ciśnienie robocze: 0,6 MPa
➡ Średnice przyłączy CWU: 3/4”
➡ Możliwość podłączenia grzałki elektrycznej: Tak, 1 szt. ( 50 cm długość grzałki)
Etykieta energetyczna
Karta produktu
Karta gwarancji
Deklaracja zgodności producenta / Atest PZH
Faktura VAT 23%
Kupując Zasobnik CWU 11.300SE firmy LEMET, otrzymujesz fabrycznie nowy, w solidnej izolacji, starannie zabezpieczony i zafoliowany na czas transportu.
Do zestawu dołączamy komplet dokumentów potwierdzających jakość i zgodność produktu. Dzięki temu masz pewność, że bufor spełnia wszystkie wymogi programów Mój Prąd 6.0 i Czyste Powietrze, co umożliwia łatwe uzyskanie dofinansowania.
