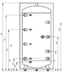
Bufor 3000l Dwie Wężownice




Wysokość: 222 cm
Średnica z izolacją: 157 cm
Średnica bez izolacji: 140 cm
Pojemność rzeczywista: 2663 l
Powierzchnia dolnej wężownicy: 4,7 m²
Powierzchnia górnej wężownicy: 3,2 m²
Maksymalna temperatura: 95°C
Maksymalne ciśnienie: 3 bar
Ilość przyłączy 6/4”: 9
Możliwość podłączenia grzałki elektrycznej: Tak
Czas realizacji: 3 tygodnie
5 lat gwarancji
Bufor ciepła 3000L PS-02 z dwiema wężownicami to zaawansowany model przeznaczony do dużych kotłowni, instalacji przemysłowych i obiektów o wysokim zapotrzebowaniu na energię cieplną. Zbiornik o rzeczywistej pojemności bliskiej 3000 litrów jest w stanie zgromadzić około 173 kWh energii, co zapewnia długą i stabilną pracę całego systemu grzewczego.
Przy standardowym zapotrzebowaniu cieplnym 50 W/m² dla budynku o powierzchni 300 m², bufor ten wystarcza na około 690 minut (11,5 godziny) ogrzewania bez aktywnej pracy kotła. Dzięki temu instalacja działa płynniej, kocioł uruchamia się rzadziej, a użytkownicy zyskują wyższy komfort cieplny i oszczędność paliwa.
Model PS-02-3000 został wyposażony w dwie wężownice – w tym górną o powierzchni 3,2 m² – co pozwala na równoczesne podłączenie różnych źródeł ciepła. Najczęściej stosuje się tu układ, w którym jedna wężownica współpracuje np. z kolektorami słonecznymi, a druga z kotłem gazowym lub olejowym. Takie rozwiązanie zapewnia maksymalną elastyczność i możliwość efektywnego zarządzania energią w dużych systemach grzewczych.
Dlaczego warto?
✅ 3000 litrów pojemności roboczej – stabilne wsparcie dla kotłów dużej mocy (45 kW i więcej)
✅ 173 kWh energii zmagazynowanej – wystarcza na blisko 11,5 godziny ogrzewania budynku o powierzchni 300 m²
✅ Dwie wężownice (górna 3,2 m²) – możliwość równoczesnej pracy z różnymi źródłami energii
✅ Stabilna praca instalacji – mniej cykli rozpaleń, równomierne oddawanie ciepła
✅ Elastyczność układu – integracja z kotłami, solarami, a także innymi źródłami w dużych obiektach

Ilość zmagazynowanej energii cieplnej

Ilość zaoszczędzonego surowca do spalania w skali roku

Energia cieplna

Woda użytkowa
✅ Wysokość: 222 cm
✅ Średnica z izolacją: 157 cm
✅ Średnica bez izolacji: 140 cm
✅ Pojemność rzeczywista: 2663 l
✅ Powierzchnia dolnej wężownicy: 4,7 m²
✅ Powierzchnia górnej wężownicy: 3,2 m²
✅ Maksymalna temperatura: 95°C
✅ Maksymalne ciśnienie pracy zbiornika: 3 bar
✅ Maksymalne ciśnienie pracy wężownicy: 10 bar
✅ Ilość przyłączy 6/4”: 9
✅ Możliwość podłączenia grzałki elektrycznej: Tak
✅ Klasa efektywności energetycznej: C
*Izolacja zdejmowalna
✅ Etykieta energetyczna
✅ Karta produktu
✅ Karta gwarancji
✅ Deklaracja zgodności producenta
✅ Faktura VAT 23%
Kupując bufor ciepła o pojemności 3000L firmy KHT, model PS-02, otrzymujesz dokładnie taki zbiornik, jaki widzisz obok – fabrycznie nowy, w solidnej izolacji, starannie zabezpieczony i zafoliowany na czas transportu 🚛✅.
Do zestawu dołączamy komplet dokumentów potwierdzających jakość i zgodność produktu. Dzięki temu masz pewność, że bufor spełnia wszystkie wymogi programów Mój Prąd 6.0 i Czyste Powietrze, co umożliwia łatwe uzyskanie dofinansowania.
